
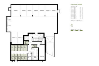
En la propiedad (superficie total de 1064 m²) se construyeron 12 apartamentos, 9 plazas de aparcamiento subterráneo, 4 plazas de aparcamiento al aire libre, aparcamiento para bicicletas y un parque infantil con jardín comunitario. Los 4 apartamentos de la planta baja cuentan con amplios jardines, que se les asignan mediante un derecho de uso especial. Las unidades de la primera planta cuentan con balcones y los áticos con terrazas en la azotea. Además, el nuevo complejo de edificios, una vez finalizado, cuenta con cocinas equipadas con electrodomésticos y un ascensor desde el sótano hasta la planta superior.
El edificio se construyó de forma sostenible y eficiente en el uso de recursos mediante un innovador método de construcción híbrido de madera y hormigón y está certificado según los estrictos estándares de BIRN.
Las paredes exteriores, así como los tabiques divisorios de los apartamentos de esta casa multifamiliar, están hechas de madera maciza, lo que contribuye a la eficiencia energética y también apuesta por la construcción sostenible.
El certificado BIRN confirma que el edificio está diseñado para ser respetuoso con el medio ambiente y eficiente en el uso de recursos. Evalúa factores como el uso de energías renovables y materiales ecológicos, y garantiza a los residentes un clima interior confortable y una alta calidad de vida.
Una vez finalizado, el edificio de apartamentos también cumple con la norma KfW 40 QNG. Esta norma garantiza edificios de nueva construcción especialmente eficientes energéticamente y respetuosos con el medio ambiente. Además, la norma KfW 40 QNG garantiza una reducción de los costes operativos a largo plazo.
Para los inversores, existen incentivos fiscales mediante deducciones por depreciación: decrecientes y especiales. Puede solicitar más información.
Mobiliario de alta calidad para una vida cómoda.
Parsdorf: Ubicación cerca de la naturaleza y con buenas conexiones de transporte.
Entorno rural y excelente infraestructura.
El edificio residencial de nueva construcción con doce unidades residenciales y un aparcamiento subterráneo está situado en un entorno tranquilo y natural en Parsdorf, un distrito del municipio de Vaterstetten.
Parsdorf se encuentra a unos 15 km al este de Múnich, la capital bávara, y tiene acceso directo a la autopista A94. El enlace de la autopista Múnich-Este está a solo unos minutos en coche.
La ciudad ofrece excelentes oportunidades de compras gracias al parque industrial de Parsdorf y al centro comercial outlet Parsdorf City. Restaurantes, guardería y escuela primaria se encuentran a poca distancia. En las comunidades vecinas hay médicos, farmacias y escuelas secundarias.
La zona circundante es rural, y el cercano bosque de Ebersberg, con sus numerosas rutas de ciclismo y senderismo, ofrece excelentes oportunidades para practicar deportes y actividades recreativas. El Parque de Vida Silvestre de Poing y el MAXXARENA de Kirchheim también garantizan actividades de ocio.
El recinto ferial de Múnich está a unos 5 minutos en coche. El centro de Múnich está a poco menos de 25 minutos. El aeropuerto de Múnich también está a 25 minutos por la circunvalación del aeropuerto.
El S-Bahn (tren de cercanías) va desde Baldham o Grub hasta el centro de Múnich en aproximadamente 25 minutos. Ambas estaciones del S-Bahn están bien conectadas por autobús y transporte público.

Año de construcción: 2026
Tipo de calefacción: Calefacción central
Tipo de certificado de eficiencia energética: Certificado basado en la demanda
Valor energético: 7,6 kWh/(m²*a)
Energía con agua caliente: No
Clase de eficiencia energética: A+
Fuente de combustible/energía: Energía geotérmica

Para enviar una exposición detallada con una descripción detallada de la propiedad, planes y más, ingrese sus datos de contacto aquí.