Cocina

Edificio nuevo, listo para habitar: ático de 2 habitaciones con balcón, cocina equipada, estacionamiento subterráneo y ascensor - Unidad 9

85599 Vaterstetten-Parsdorf
Identificación: 2197
  • Cocina
    Cocina
  • Sala de estar y comedor
    Sala de estar y comedor
  • Dormir
    Dormir
  • balcón
    balcón
  • Pasillo
    Pasillo
  • baño
    baño
  • Acceso
    Acceso
  • Vista exterior, vista trasera
    Vista exterior, vista trasera
  • Entrada
    Entrada
  • Vista exterior
    Vista exterior
  • estacionamiento subterráneo
    estacionamiento subterráneo
  • Plan de diseño de espacios abiertos
    Plan de diseño de espacios abiertos
  • Acceso
    Acceso
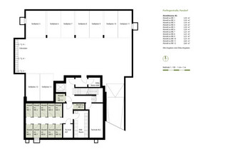
  • Plano de planta Purfinger WE9
    Plano de planta Purfinger WE9
  • Plano del sótano
    Plano del sótano

Descripción

En la propiedad (superficie total de 1064 m²) se construyeron 12 apartamentos, 9 plazas de aparcamiento subterráneo, 4 plazas de aparcamiento al aire libre, aparcamiento para bicicletas y un parque infantil con jardín comunitario. Los 4 apartamentos de la planta baja cuentan con amplios jardines, que se les asignan mediante un derecho de uso especial. Las unidades de la primera planta cuentan con balcones y los áticos con terrazas en la azotea. Además, el nuevo complejo de edificios, una vez finalizado, cuenta con cocinas equipadas con electrodomésticos y un ascensor desde el sótano hasta la planta superior.

El edificio se construyó de forma sostenible y eficiente en el uso de recursos mediante un innovador método de construcción híbrido de madera y hormigón y está certificado según los estrictos estándares de BIRN.

Las paredes exteriores, así como los tabiques divisorios de los apartamentos de esta casa multifamiliar, están hechas de madera maciza, lo que contribuye a la eficiencia energética y también apuesta por la construcción sostenible.

El certificado BIRN confirma que el edificio está diseñado para ser respetuoso con el medio ambiente y eficiente en el uso de recursos. Evalúa factores como el uso de energías renovables y materiales ecológicos, y garantiza a los residentes un clima interior confortable y una alta calidad de vida.

Una vez finalizado, el edificio de apartamentos también cumple con la norma KfW 40 QNG. Esta norma garantiza edificios de nueva construcción especialmente eficientes energéticamente y respetuosos con el medio ambiente. Además, la norma KfW 40 QNG garantiza una reducción de los costes operativos a largo plazo.

Para los inversores, existen incentivos fiscales mediante deducciones por depreciación: decrecientes y especiales. Puede solicitar más información.

Equipo

Mobiliario de alta calidad para una vida cómoda.

  • Construcción híbrida de madera y hormigón, respetuosa con el medio ambiente e innovadora (norma KfW 40 QNG)
  • Amortización decreciente y especial para inversores (MÁS INFORMACIÓN DISPONIBLE BAJO PETICIÓN)
  • Apartamentos en planta baja cada uno con su propia zona de jardín y terraza.
  • Los apartamentos en los pisos superiores y áticos tienen balcón.
  • Ventanas y puertas francesas con vidrio aislante de triple acristalamiento y persianas enrollables de accionamiento eléctrico, en el ático con persianas con cremallera de accionamiento eléctrico.
  • Claraboyas de accionamiento eléctrico con protección solar exterior en el ático
  • Suelo de parquet de roble aceitado en las zonas de estar.
  • Gres porcelánico de gran formato en baños y pasillos
  • Cuartos de ducha con sanitarios de alta calidad compuestos de ducha, lavabo e inodoro.
  • Calefacción por suelo radiante con control individual de la habitación
  • Cocinas modernas equipadas con electrodomésticos Siemens de alta calidad.
  • Conexión para lavadora en el apartamento o en el lavadero del sótano.
  • Intercomunicador
  • unidades de almacenamiento en el sótano con cerradura
  • Plaza de aparcamiento subterráneo y/o plaza de aparcamiento al aire libre disponibles bajo petición.
  • Ascensor
  • Jardín comunitario con asientos y zona de juegos infantiles.

Ubicación

Parsdorf: Ubicación cerca de la naturaleza y con buenas conexiones de transporte.

Entorno rural y excelente infraestructura.
El edificio residencial de nueva construcción con doce unidades residenciales y un aparcamiento subterráneo está situado en un entorno tranquilo y natural en Parsdorf, un distrito del municipio de Vaterstetten.

Parsdorf se encuentra a unos 15 km al este de Múnich, la capital bávara, y tiene acceso directo a la autopista A94. El enlace de la autopista Múnich-Este está a solo unos minutos en coche.

La ciudad ofrece excelentes oportunidades de compras gracias al parque industrial de Parsdorf y al centro comercial outlet Parsdorf City. Restaurantes, guardería y escuela primaria se encuentran a poca distancia. En las comunidades vecinas hay médicos, farmacias y escuelas secundarias.

La zona circundante es rural, y el cercano bosque de Ebersberg, con sus numerosas rutas de ciclismo y senderismo, ofrece excelentes oportunidades para practicar deportes y actividades recreativas. El Parque de Vida Silvestre de Poing y el MAXXARENA de Kirchheim también garantizan actividades de ocio.

El recinto ferial de Múnich está a unos 5 minutos en coche. El centro de Múnich está a poco menos de 25 minutos. El aeropuerto de Múnich también está a 25 minutos por la circunvalación del aeropuerto.

El S-Bahn (tren de cercanías) va desde Baldham o Grub hasta el centro de Múnich en aproximadamente 25 minutos. Ambas estaciones del S-Bahn están bien conectadas por autobús y transporte público.

Certificado energetico

Consumo energético según EnEV 2014.
Consumo energético según EnEV 2014.
7,6
kWh/(m²*a)
Tipo de certificado energético:
Certificado de demanda
Fecha de emisión:
05.02.2026
Fecha de expiración:
04.02.2036
Año de construcción:
2026
Fuente de energia significativa:
Erdwärme
Consumo de energía final:
7,6 kWh/(m²*a)
Con agua caliente:
no
Clase de eficiencia energetica:
A+

Otra información

Año de construcción: 2026
Tipo de calefacción: Calefacción central
Tipo de certificado de eficiencia energética: Certificado basado en la demanda
Valor energético: 7,6 kWh/(m²*a)
Energía con agua caliente: No
Clase de eficiencia energética: A+
Fuente de combustible/energía: Energía geotérmica

Los costos
Precio de compra:
469.000 €
Comisión:
Sin comisión para el comprador.
Áreas y habitaciones
Sala de estar total:
aprox. 50,5 m²
Área utilizable:
aprox. 55,65 m²
Habitaciones:
2
Dormitorio:
1
Baño:
1
Terrazas:
1
Otras caracteristicas
Tipo:
Apartamento ático
Año de construcción:
2026
Edificio antiguo / nuevo:
Neubau
Estado:
Primera ocupación
Disponible de:
Finales de febrero de 2026
Piso:
2 / 2
Ascensor:
yes
Equipo:
De lujo
arrendado:
no
con sótano:
yes
Cocina equipada:
yes
Aseo de invitados:
no
Adecuado para personas mayores:
yes
Acceso para discapacitados:
yes
Uso de jardín:
yes
Mascotas permitidas:
yes
Su persona de contacto
Philipp Maier
Philipp Maier
Philipp Maier
Gerente
Comercial inmobiliario
Solicitar exposición

Para enviar una exposición detallada con una descripción detallada de la propiedad, planes y más, ingrese sus datos de contacto aquí.

Los campos marcados con (*) son obligatorios, todos los demás campos son voluntarios. Los datos recopilados por usted aquí son procesados ​​por MAIERIMMOBILIEN GmbH para responder a su solicitud respectiva. Más información se puede encontrar en la política de privacidad.

Configuración de privacidad

Este sitio web utiliza componentes externos, como mapas, videos o herramientas de análisis que se pueden utilizar para recopilar datos sobre su comportamiento. Los componentes externos también establecen cookies. El consentimiento para usar los componentes se puede revocar en cualquier momento.
Para obtener más información, consulte nuestra política de privacidad.