
Wir freuen uns, Ihnen Erdgeschoss-Gewerbeflächen im Neubau-Erstbezug in stark frequentierter Lage im Münchner Stadtteil Neuhausen, nahe Rotkreuzplatz, anbieten zu dürfen.
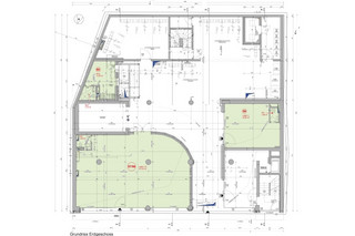
Die Gewerbeflächen umfassen ein großzügiges Ladenlokal/Restaurant mit ca. 110 m², eine weitere Gewerbefläche mit ca. 32 m² sowie ein Abrechnungsbüro/Personalraum bzw. Office mit Dusche (ca. 11 m²). Die Gesamtfläche aller drei Einheiten beträgt 155,2 m².
Die Flächen sind voraussichtlich ab Juni 2026 bezugsfertig. Es wird ein langfristiges Mietverhältnis gewünscht. Aktuell befinden sich die Einheiten in der Ausbauphase, sodass – je nach Baufortschritt – Mieterwünsche berücksichtigt werden können.
Eine gastronomische Nutzung ist grundsätzlich darstellbar, z. B. als Tagesbar mit Catering oder Streetfood-Konzept mit Straßenverkauf (vorbehaltlich behördlicher Genehmigungen und technischer Voraussetzungen).
Das Wohn- und Geschäftshaus ist hochwertig kernsaniert und entspricht aktuellen Energiestandards. Der Energiebedarf beträgt 18,9 kWh/(m²·a) (Energieeffizienzklasse A+).
Nutzen Sie diese Gelegenheit – wir freuen uns auf Ihre Anfrage.
Folgende Grundausstattung ist im Mietzins enthalten:
klassischer Ausbau mit Toilette
Fußbodenheizung
TB-Decke
moderner Fliesenboden
Decken und Wände weiß gestrichen
beste energetische Umsetzung
die Verglasung mit Zugang zur Verkaufsfläche/Restaurantfläche ist noch gestaltbar, nicht in Auftrag gegeben
flexible Öffnungszeiten auch am Wochenende
optional anmietbar: TG-Einzelstellplatz 4 Stück je Stellplatz 125€
München - Neuhausen - Nähe Rotkreutzplatz
Die Erdgeschoss-Ladeneinheit befindet sich in einem urban gewachsenen Münchner Quartier mit überwiegend mehrgeschossiger Wohnbebauung und wird als Neubau (Erstbezug) angeboten.
Das direkte Umfeld ist geprägt von hoher Wohn- und Alltagsfrequenz und bietet damit ein stabiles, wohnungsnahes Kundenpotenzial. Durch die prominente Erdgeschosslage verfügt das Objekt über eine sehr gute Sichtbarkeit und profitiert von einer entsprechend guten Kundenfrequenz.
Entlang der Straße verkehrt die Trambahn; als nächstgelegener, leistungsstarker ÖPNV-Knotenpunkt ist der Rotkreuzplatz fußläufig erreichbar. Öffentliche Parkmöglichkeiten (Straßenparkplätze) sind in der Umgebung vorhanden (je nach Straßenabschnitt mit Bewirtschaftungs- bzw. Anwohnerregelungen).
Insgesamt überzeugt die Mikrolage durch ein dichtes Einzugsgebiet und eine sehr gute Erreichbarkeit für Kunden, Mitarbeitende und Lieferanten.
Baujahr: 2026
Heizungsart: Zentralheizung
Befeuerung/Energieträger: Wärmepumpe
Indexmietvertrag
Mindestmietdauer ab 5 Jahre gerne mit Option für den Mieter
(Auch längeres Mietverhältnis vorstellbar, je nach gewünschter Ausbaustufe)
Kein Vorsteuerabzug möglich

Für die Zusendung eines detaillierten Exposés mit ausführlicher Objektbeschreibung sowie Pläne und mehr geben Sie bitte hier Ihre Kontaktdaten ein.